Однокомнатные
двухкомнатные
+7 (916) 584-15-17
kopeikina.interiors@ya.ru
Однокомнатные
двухкомнатные
+7 (916) 584-15-17
kopeikina.interiors@ya.ru
ПРОЕКТЫ
ОДНОКОМНАТНЫХ
КВАРТИР
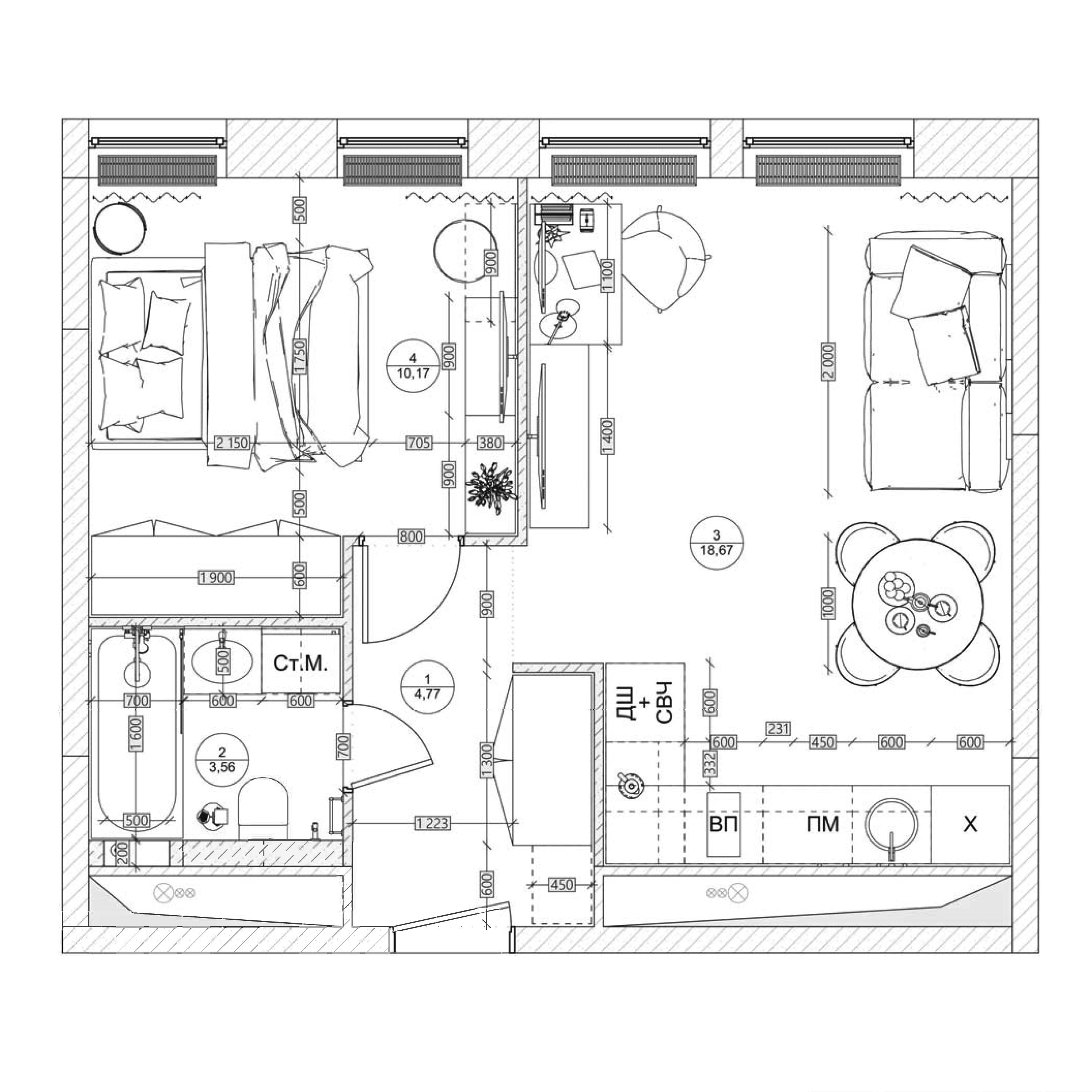
ОДНОКОМНАТНАЯ КВАРТИРА
В ЖК «ЗЕЛЕНОГРАД СИТИ»
Метраж
36,77 м²
Для кого
Молодая девушка
Стилистика
Современный, скандинавский
Бюджет
1 000 000 р.
Кухня
Кухня
Кухня
Гостиная
Гостиная
Прихожая
Ванная комната
Балкон
●●●●●●●●●●●●●●●●●●●●●●●●●●●●●●●●●●●●●●
ОДНОКОМНАТНАЯ КВАРТИРА
В ЖК «СПАССКИЙ МОСТ»
Метраж
43,16 м²
Для кого
Молодая пара с ребёнком
Стилистика
Современный, скандинавский
Бюджет
2 400 000 р.
Кухня гостиная
Кухня гостиная
Кухня гостиная
Спальня
Спальня
Прихожая
Ванная комната
Ванная комната
●●●●●●●●●●●●●●●●●●●●●●●●●●●●●●●●●●●●●●
ОДНОКОМНАТНАЯ КВАРТИРА
В ЖК «Новый зеленоград»
Метраж
30,52 м²
Для кого
Молодая девушка
Стилистика
Современный, неоклассика
Бюджет
1 600 000 р.
Спальня
Кухня гостиная
Кухня гостиная
Кухня гостиная
Спальня
Кухня гостиная
Ванная комната
Ванная комната
●●●●●●●●●●●●●●●●●●●●●●●●●●●●●●●●●●●●●●
ОДНОКОМНАТНАЯ КВАРТИРА
В ЧЕРТАНОВО
Метраж
31,12 м²
Для кого
Молодая пара
Стилистика
Современный
Бюджет
1 900 000 р.
Спальня
Спальня
Гостиная
Гостиная
Кухня
Кухня
Прихожая
Прихожая
●●●●●●●●●●●●●●●●●●●●●●●●●●●●●●●●●●●●●●
ОДНОКОМНАТНАЯ КВАРТИРА
В ЖК «РЕЗИДЕНЦИЯ АРХИТЕКТОРОВ»
Метраж
38,52 м²
Для кого
Молодая девушка
Стилистика
Лофт
Бюджет
1 800 000 р.
Кухня гостиная
Кухня гостиная
Кухня гостиная
Спальня
Спальня
Прихожая
Ванная комната
Ванная комната
●●●●●●●●●●●●●●●●●●●●●●●●●●●●●●●●●●●●●●
ОДНОКОМНАТНАЯ КВАРТИРА
В ЖК «PLAY»
Метраж
37,11 м²
Для кого
Молодая пара
Стилистика
Современный
Бюджет
2 000 000 р.
Кухня гостиная
Кухня гостиная
Кухня гостиная
Спальня
Спальня
Прихожая
Ванная комната
Ванная комната
Создано на